
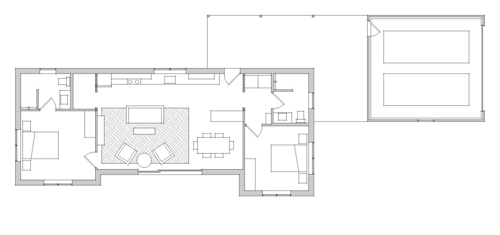
The featured home is a spacious 1208 square feet. From the garden or from the two-car garage, you enter the house by passing through an open breezeway. Enclosing it as a screen porch is a possibility. The front door opens into an entry area with plenty of storage and views of a spacious living-dining-kitchen area just beyond. On the far end is the master bedroom, with an en suite bathroom. A second bedroom with adjacent bath is located near the laundry. A low-slung, rough-sawn local wood ceiling in the kitchen and baths contrasts with a soaring vault in the main living areas. Custom wood cabinets and quality craftsmanship throughout create a feeling of simple luxury and warmth.
This plan can easily be reimagined as a one-bedroom home with a wing removed, or as a three-bedroom with a wing added. A second story over all or part of the main floor would create an economical home for a large family. Likewise, a stair leading to a basement, whether daylit or walkout, would increase living and storage space. There is no end to how spaces can be arranged to suit every size family and their unique lifestyle!
Get in touch with Amber for a complimentary, no-obligation consultation to see if we might collaborate on the design of your new home.
Amber Westerman
Text/Phone: 608.935.9020
Email: amber@amberwesterman.com
Home/Office: 770 N. Westmor St, Spring Green, WI 53588
Mailing Address: P.O. Box 304, Spring Green, WI 53588
Resume: Linked In