Throwback

March 2, 2019:  My house is a throwback to 1955. That’s the last time the average new home built in America was 1200 square feet. By 2014, the average new home ballooned to 2657 square feet—even while families got smaller. Today 62 out of 100 households are just one or two people.

I meet people all the time who want to down-size. As an empty-nester myself, I can relate. A big house is too much work. It takes a lot to heat and cool. Steps can become a problem. Older homes need updates and don’t adapt well to modern lifestyles but newer homes are big and boxy and lack character. Living in the country is nice but can be isolating and you’re forever driving back and forth to town.

As a designer who’s listened to hundreds of families describe the good and the bad of their living situations, and as a builder who wants to make a difference, I see an under-served market.

At first, I didn’t think I would be able to build the house I wanted on the lot I wanted. Like most subdivisions, mine has Covenants—certain minimum requirements laid down by the developer to insure a sort-of uniformity to the neighborhood. The minimum size for a one-story home was 1500 square feet.

Turns out, rules are negotiable. My Offer to Purchase was contingent on approval to build a 1200 square foot home. As soon as it was accepted, I hit the drafting board.

Whittling down a wish-list takes some time, a little work with a tape measure, and a bit of inspiration. Of course, not everyone will make the same calculation I did, but here’s what made the cut and what didn’t:

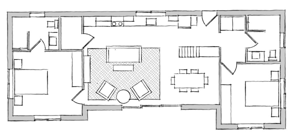
throwback finalNO HALLWAYS: Eliminating hallways is hard to do in a large home but pretty easy to do in a small home. Each bedroom is on either side of the great room, not lined up along a bedroom wing. The kitchen is a galley with standing space doing double duty as the main circulation route. The laundry is a smallish “room” that you walk through to get to the bathroom and bedroom.

NO CLOSETS: Instead, there are built-in cabinets for coats, clothes, pantry, and cleaning supplies. This saves space usually taken up by 2×4 wall framing.

NO STAIRWAY: There is no basement and no second floor. Instead, there’s a narrow ladder-stair to attic-like space for bulk storage.

NO DINING ROOM: A nook off the Living Room is convertible to informal dining, homework, crafts, games, or TV area.

NO FOYER: Instead of two rooms—one for guests and the other a mudroom, there’s a single way in with a place to hang coats and drop boots that does double duty as the main circulation route.

NO LAVISH MASTER BATH: Each of two bathrooms is a modest size with a tiled walk-in shower. There’s no tub.

YES WINDOWS: The number of windows is modest, but their size varies from small view-port to over-scaled, adding drama and bringing attention to particular views. Each room has windows on two sides to balance light and draw in fresh air.  Each bathroom has a window.

YES VAULTED CEILINGS: I splurged on volume but keep things cozy by layering in wood beamed ceilings over the kitchen, entry, and bathrooms. The rooms feel bigger and airier and more spatially complex. Diagonal views both up and out extend views and expand space.

YES OUTDOOR LIVING SPACE: There’s a breezeway-style porch for summertime dining and lounging and a walled garden/patio for campfires and watching the stars, both just steps away from the kitchen.  I’ll live mostly outside 6 months of the year!